Popis
Zrubový dom Valéria je moderný poschodový drevodom určený na celoročné bývanie.
Pohľady:
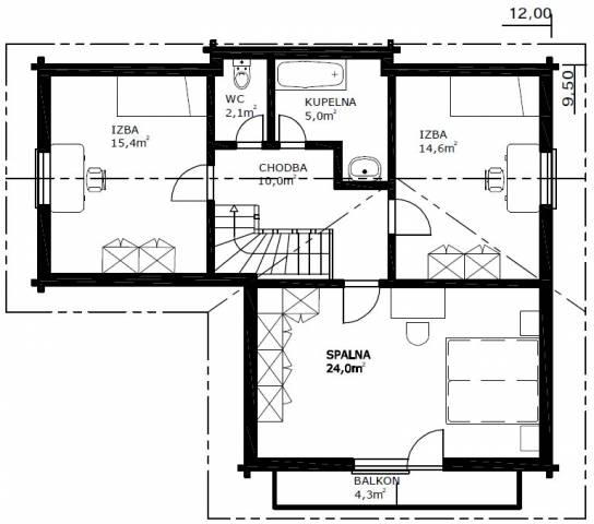
Pôdorysy
Obsah dodávky zrubovej stavby s minerálnou izoláciou:
| Minerálna izolácia | Zák. konštrukcia stavby | Hrubá stavba | Kom. drevená časť stavby |
|---|---|---|---|
| Obvodová stena: zrubový masív hrúbka 92 mm | |||
| Minerálna izolácia obvodových stien: hr. 160mm + fólie | |||
| Vnútorné priečky: priehradová konštrukcia: hr. 100mm | |||
| Minerálna izolácia vnútorných priečok: hr. 100mm + fólie | |||
| Vnútorné obklady obvodových stien + obklady interiérových stien z profil. dreva hr. 19 mm | |||
| Vodorovný strop, povalové trámy + podhľad z dreva hr. 19mm + OSB doska | |||
| Izolácia hrúbky 300 mm + fólie | |||
| Krov: nepohľadové krokvy, väzníky, klieštiny, vrátane lát a kontralát + fólie | |||
| Strešná krytina - bitummenový šindeľ + vydebnenie strechy z prof. dreva 19 mm namiesto lát a kontralát | |||
| Euro okná a euro dvere bez okeníc a dverníc | |||
| Interiérové dvere: celodrevené alebo presklené, vrátane náteru | |||
| Výrobná dokumentácia | |||
| DPH 20% |
Obsah dodávky zrubovej stavby s korkovou izoláciou:
| Korková izolácia | Zák. konštrukcia stavby | Hrubá stavba | Kom. drevená časť stavby |
|---|---|---|---|
| Obvodová stena: dva zrubové masívne hranoly hrúbka 68 + 68 mm tesniace pásky medzi zrub | |||
| Izolácia obvodových stien: sypaný korok hr. 160 mm | |||
| Vnútorné priečky: priehradová konštrukcia: hr. 100mm | |||
| Minerálna izolácia vnútorných priečok: hr. 100mm + fólie | |||
| Obklady interiérových stien z profilového dreva hr. 19mm | |||
| Vodorovný strop, povalové trámy + podhľad z dreva hr. 19mm + OSB doska | |||
| Izolácia hrúbky 300 mm + fólie | |||
| Krov: nepohľadové krokvy, väzníky, klieštiny, vrátane lát a kontralát + fólie | |||
| Strešná krytina - bitummenový šindeľ + vydebnenie strechy z prof. dreva 19 mm namiesto lát a kontralát | |||
| Euro okná a euro dvere bez okeníc a dverníc | |||
| Interiérové dvere: celodrevené alebo presklené, vrátane náteru | |||
| Výrobná dokumentácia | |||
| DPH 20% |









